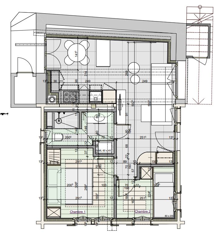
Nous vous proposons ce bel appartement entièrement rénové à neuf situé à la Route de Tsanzillan 1 à Mase. Ce bien est à proximité de toutes les commodités dont jouit le village ainsi que d'un arrêt de bus menant à la ville de Sion. Il offre un magnifique séjour, une cuisine équipée, une salle d'eau et 2 chambres qui font de ce logement un lieu agréable en adoptant totalement le charme de sa localité.
La distribution de ce bien est la suivante :
Cuisine équipée
Séjour
2 chambres
Salle d'eau avec douche et lave linge intégré
Réduit
Des places de parc communales sont à seulement quelques pas du logement.
