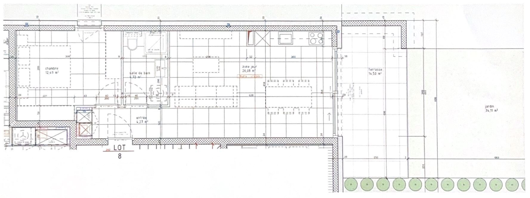
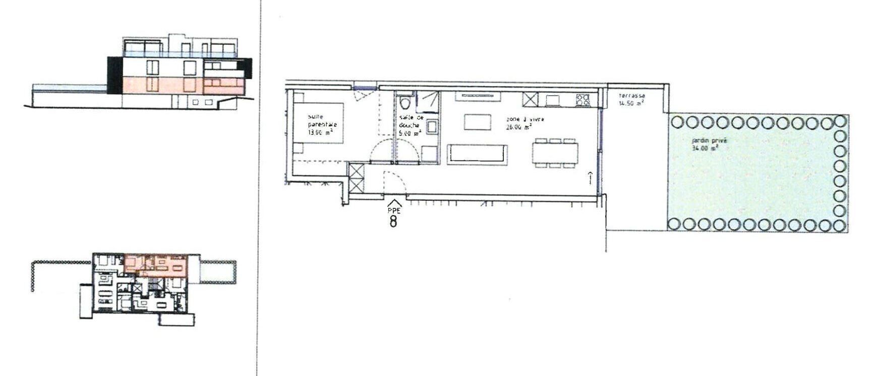
Nous vous proposons à la location un magnifique appartement neuf de 2.5 pièces, situé à la Route de Maze 13 à Chermignon-d’en-Haut. Ce logement d’environ 60 m², sis au rez-de-chaussée d’un immeuble construit en 2025, offre un cadre moderne et agréable.
Il se compose comme suit :
Un hall d’entrée avec armoires encastrées
Une cuisine entièrement équipée, ouverte sur le séjour
Un spacieux séjour donnant accès à une terrasse et à un jardin
Une grande chambre
Une salle de douche avec les raccordements prévus pour une colonne de lavage
En complément, l’appartement bénéficie de deux places de parc extérieures, incluses dans le prix.
N’hésitez pas à nous contacter pour de plus amples informations ou pour organiser une visite.

 
                     
     
             
             
             
             
             
             
             
             
            