×
Titelbild

Beschreibung


Le projet immobilier "Anhinga" est une nouvelle résidence immobilière constituée de six niveaux hors-sol (R+A+Attique) et de deux niveaux en sous-sol. Les niveaux rez-de-chaussée et premier sont affectés à la banque Raiffeisen Sierre & Région. L'architecture ainsi que la direction de travaux sont réalisés par le bureau d'architecture "Varone Villé Papon & partenaires SA", ainsi que par l'entreprise totale de construction "Losinger-Marazzi SA".

Les niveaux 2, 3, 4 et attique sont affectés aux logements PPE, soit 25 appartements allant du 2.5 pièces au 4.5 pièces. De nombreuses places de parc intérieures sont prévues. La structure du bâtiment est pensée de manière modulable, permettant une liberté dans les typologies ainsi que les aménagements de chaque appartement. Ce projet immobilier s'inspire d'un concept architectural contemporain offrant de spacieux espaces de vie. Les prestations intérieures sont particulièrement soignées, avec l'utilisation de matériaux de qualité supérieure. Les surfaces sont parfaitement étudiées. Quant aux espaces de vie, ceux-ci donnent accès aux terrasses qui bénéficient d'une belle luminosité et d'un confort optimal.










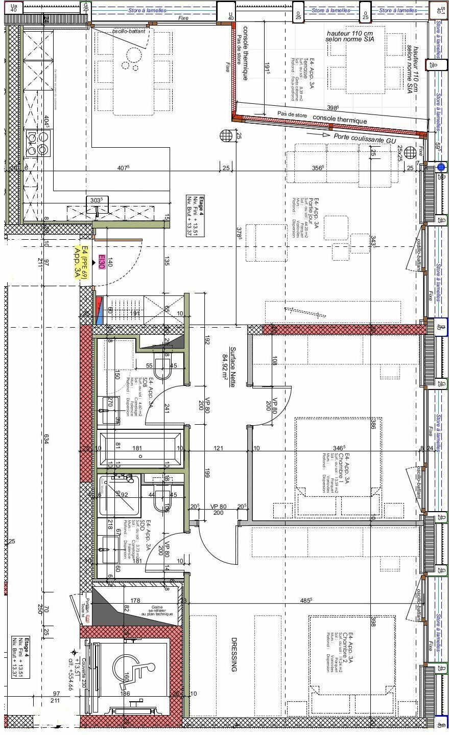
La disposition de cet appartement de 3.5 pièces au 4ème étage est la suivante :

  • Un hall d'entrée comprenant des armoires encastrées
  • Une cuisine ouverte sur le séjour
  • Un spacieux séjour avec un accès à la loggia
  • Une chambre parentale avec une salle de douche privative
  • Une salle de bain
  • Une chambre
  • Une loggia
  • Une cave

Une place de parc dans le parking intérieure de l'immeuble est disponible au prix de CHF 48'000.00 en sus du prix de vente.

Lage


Le projet immobilier "Anhinga" implanté au centre-ville de Sierre, se trouve à proximité immédiate à pied de toutes les commodités offertes par la ville. Son emplacement privilégié lui confère de multiples avantages : accès facile aux transports publics, commerces, établissements scolaires, services publics, lieux culturels et destinations touristiques comme Crans-Montana et le Val d'Anniviers.

Gemeinde


Située au cœur du Valais, petite ville en mouvement où il fait bon vivre, Sierre bénéficie d'un cadre de vie privilégié. Elle est réputée pour être la région la plus ensoleillée de Suisse, d'où son appellation "Cité du soleil". Sierre a été construite autour de ses quartiers historiques tels que le Bourg, la Tservetta, Muraz, Villa, Glarey ou Géronde, ce qui la rend non seulement attrayante, mais aussi empreinte de culture. La ville se veut accueillante, offrant à ses habitants de nombreuses infrastructures et, ainsi, une authentique qualité de vie. Elle propose des manifestations multiples tout au long de l'année. Sierre est également connue pour être une région viticole tout en étant reconnue pour être un "leader" de la production de vins en Suisse. La ville de Sierre a simplement su conserver son caractère villageois tout en s'accordant un certain dynamisme économique et social.

Verkehrsanbindung


Les transports en commun sont également situés à proximité immédiate de l'immeuble :

  • L'arrêt de bus se situe à 65 mètres.
  • La gare CFF se situe à 280 mètres.
  • Le funiculaire SMC se situe à 400 mètres.
  • L'autoroute se situe à 1.2 kilomètres.

Kontaktformular

fakultativ